Стали відомі результати відкритого архітектурного бліцконкурсу на кращу проєктну пропозицію спортивного комплексу по проїзду Парковому, 12 в місті Чернівцях.
В четвер, 15 грудня, відбулося засідання журі відкритого архітектурного бліцконкурсу на кращу проєктну пропозицію спортивного комплексу по проїзду Парковому, 12 в місті Чернівцях. У ході розгляду проєктних пропозицій, що були подані на конкурс, журі обрало переможців.
Відомо, що до участі в конкурсі зареєструвалось 17 авторських колективи з різних міст України, зокрема з Чернівців, Львова, Харкова, Києва, Дніпра, Одещини, Сумщини. Відтак на розгляд журі було подано 6 проєктів.
Основним завданням конкурсантів було передбачити комплексне планування споруди спортивного комплексу та благоустрою прилеглої території. Сформувати функціональне зонування території спортивного комплексу
Переможцем конкурсу обрано проєкт під шифром 123654 авторського колективу з Чернівців: В’ячеслав Кишлярук, Олег Кишлярук. Проєкт-переможець отримує грошову винагороду у розмірі 50 000 грн. 
Друге місце та премію у розмірі 30 000 грн отримав проєкт під шифром 200548, автора з Чернівців – Олега Пікущенка.
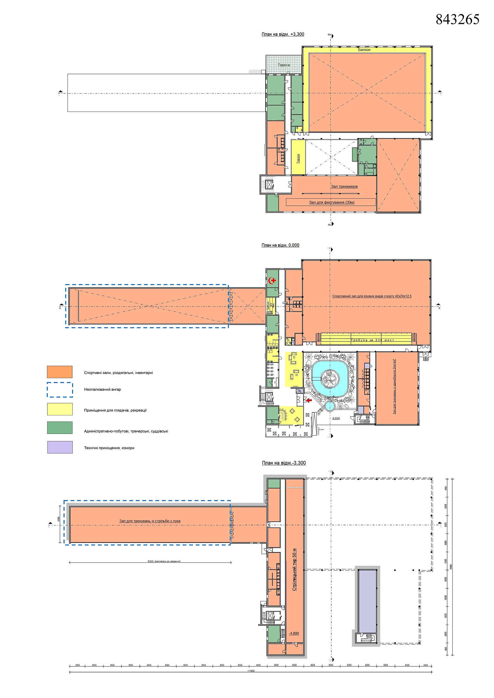
Третє місце із премією у розмірі 20 000 грн посів проєкт під шифром 843265, автора з Одеської області – Юрія Снядовського.
До журі конкурсу увійшли:
Василь Зазуляк — заступник міського голови з питань діяльності виконавчих органів, член Ради директорів Конфедерації будівельників України;
Дмитро Домітрюк — заступник директора, начальник управління містобудування та архітектури департаменту урбаністики та архітектури Чернівецької міської ради, головний архітектор міста;
Олександр Шведик — начальник відділу містобудування та архітектури управління містобудування, архітектури та технічного нагляду департаменту капітального будівництва, містобудування та архітектури Чернівецької ОДА, член Правління місцевої організації Національної спілки архітекторів України в Чернівецькій області (за згодою);
Ярослав Бойко — архітектор, член Чернівецького регіонального відділення Архітектурної палати України, голова місцевої організації Національної спілки архітекторів України в Чернівецькій області (за згодою);
Лариса Вандюк — архітектор, член місцевої організації Національної спілки архітекторів України в Чернівецькій області (за згодою);
Олександр Кордунян — архітектор, кандидат архітектури, асистент кафедри дизайну архітектурного середовища НУ «Львівська Політехніка», член місцевої організації Національної спілки архітекторів України в Чернівецькій області (за згодою);
Наталія Горбачова — архітектор, член місцевої організації Національної спілки архітекторів України в Чернівецькій області (за згодою);
Данило Семенцов — архітектор, член місцевої організації Національної спілки архітекторів України в Чернівецькій області (за згодою);
Василь Гринюк — архітектор, кандидат архітектури, асистент кафедри дизайну архітектурного середовища НУ «Львівська Політехніка», член місцевої організації Національної спілки архітекторів України в Чернівецькій області (за згодою);
Сергій Гомонович — архітектор, доцент кафедри архітектури та збереження об`єктів Всесвітньої спадщини ЮНЕСКО Чернівецький національний університету ім.Ю.Федьковича, член місцевої організації Національної спілки архітекторів України в Чернівецькій області (за згодою);
Дмитро Макаренко — начальник управління по фізичній культурі та спорту Чернівецької міської ради.
Згодом можна буде ознайомитися із каталогом конкурсних проєктів та відвідати виставку робіт. Про час та місце проведення буде повідомлено пізніше.
Департамент урбаністики та архітектури дякує усім учасникам конкурсу, членам журі, громадській спільноті, Чернівецькій обласній спілці архітекторів України та всім залученим до організації та проведення конкурсу.
























