В п’ятницю, 24 червня, відбулося засідання журі відкритого архітектурного бліцконкурсу на кращу проєктну пропозицію благоустрою південної частини парку Жовтневий, обмеженої вул. В.Комарова – вул. Південно-Кільцевою – вул. С.Воробкевича – проїздом Парковим в місті Чернівцях. У ході розгляду проєктних пропозицій, що були подані на конкурс, журі обрало переможців.
Відомо, що до участі в конкурсі зареєструвалось 16 авторських колективів з різних міст України, зокрема з Чернівців, Львова, Івано-Франківська, Пирятина, Вишгорода. Відтак на розгляд журі було подано 12 проєктів.
Основним завданням конкурсантів було знайти найкраще архітектурно-планувальне рішення благоустрою південної частини парку, створити зручні комунікаційні зв’зки між уже існуючими та запропонованими зонами парку.
Так, переможцем конкурсу обрано проєкт під шифром 158018 авторського колективу з Чернівців, Тимофтій В.Т., Семенцов Д.В., Тимофтій Н.В. та Колтунова Д.О. Проєкт-переможець отримує грошову винагороду у розмірі 70 000 грн.
Друге місце та премію у розмірі 50 000 грн отримав проєкт під шифром 345907, авторського колективу з Чернівців: Кишлярчук В.В., Кишлярук С.Є., Кишлярук О.В., Булига Ю.С. та Ковальська М.А
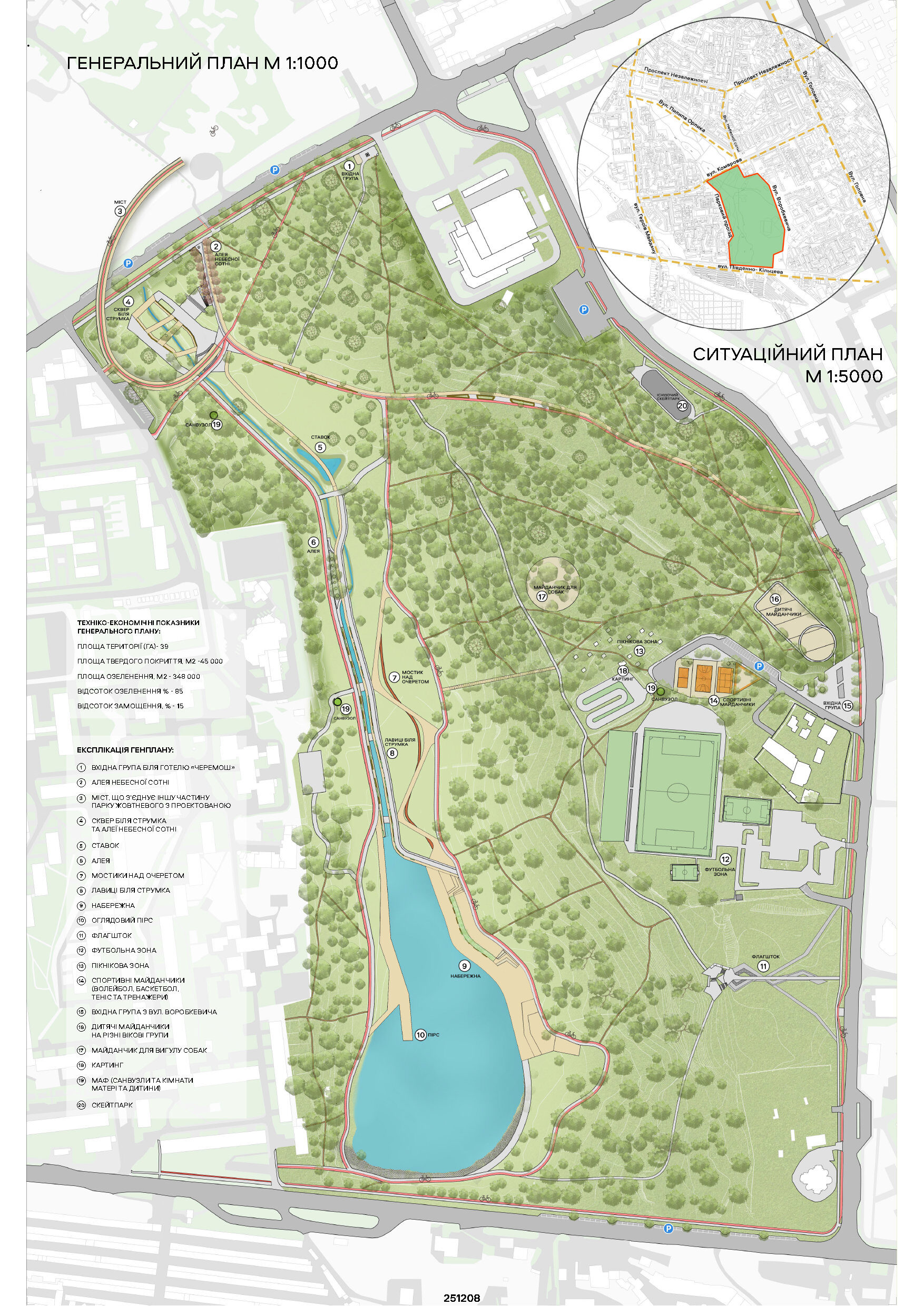
Третє місце із премією у розмірі 30 000 грн посів проєкт під шифром 251208, авторського колективу з Чернівців: Бродський О.С., Зазубек Д.В., Чернописька Л.В., Дуднік Ю.Ю. та Корягіна А.І.
До журі конкурсу увійшли:
Василь Зазуляк — заступник міського голови з питань діяльності виконавчих органів, член Ради директорів Конфедерації будівельників України;
Дмитро Домітрюк —заступник директора, начальник управління містобудування та архітектури департаменту урбаністики та архітектури Чернівецької міської ради, головний архітектор міста;
Максим Коцюба – архітектор, засновник та керівник студії ландшафтної архітектури «KOTSIUBA» (за згодою);
Олег Пікущенко— архітектор, віцепрезидент Національної спілки архітекторів України, голова Архітектурної палати України, член Правління Національної спілки архітекторів України в Чернівецькій області (за згодою);
Юрій Воронка— директор комунального підприємства “Парк Жовтневий”;
Олександр Завалецький — архітектор, член місцевої організації Національної спілки архітекторів України в Чернівецькій області (за згодою);
Наталія Горбачова — архітектор, член місцевої організації Національної спілки архітекторів України в Чернівецькій області (за згодою).
Олександр Григорчук— архітектор, член Ради Чернівецького регіонального відділення АПУ НСАУ, член Правління місцевої організації Національної спілки архітекторів України в Чернівецькій області (за згодою).
Згодом можна буде ознайомитися із каталогом конкурсних проєктів та відвідати виставку робіт. Про час та місце проведення буде повідомлено пізніше.
Департамент урбаністики та архітектури дякує усім учасникам конкурсу, членам журі, громадській спільноті, Чернівецькій обласній спілці архітекторів України та всім залученим до організації та проведення конкурсу.






























